it

CAPANNONE - VIA AFRICA - PONTEDERA

In vendita
Capannone
Pontedera
1.180.000 €
Descrizione
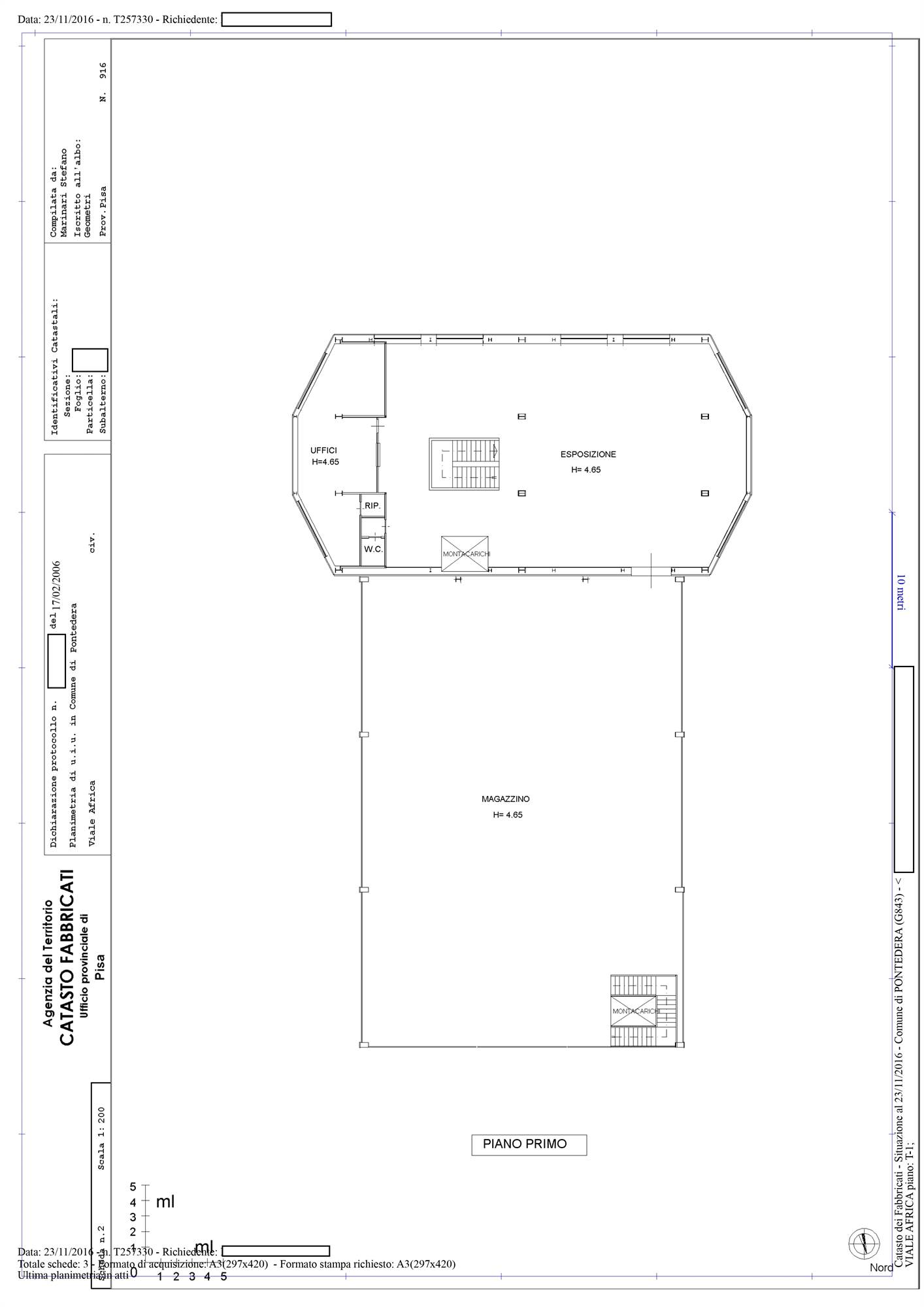
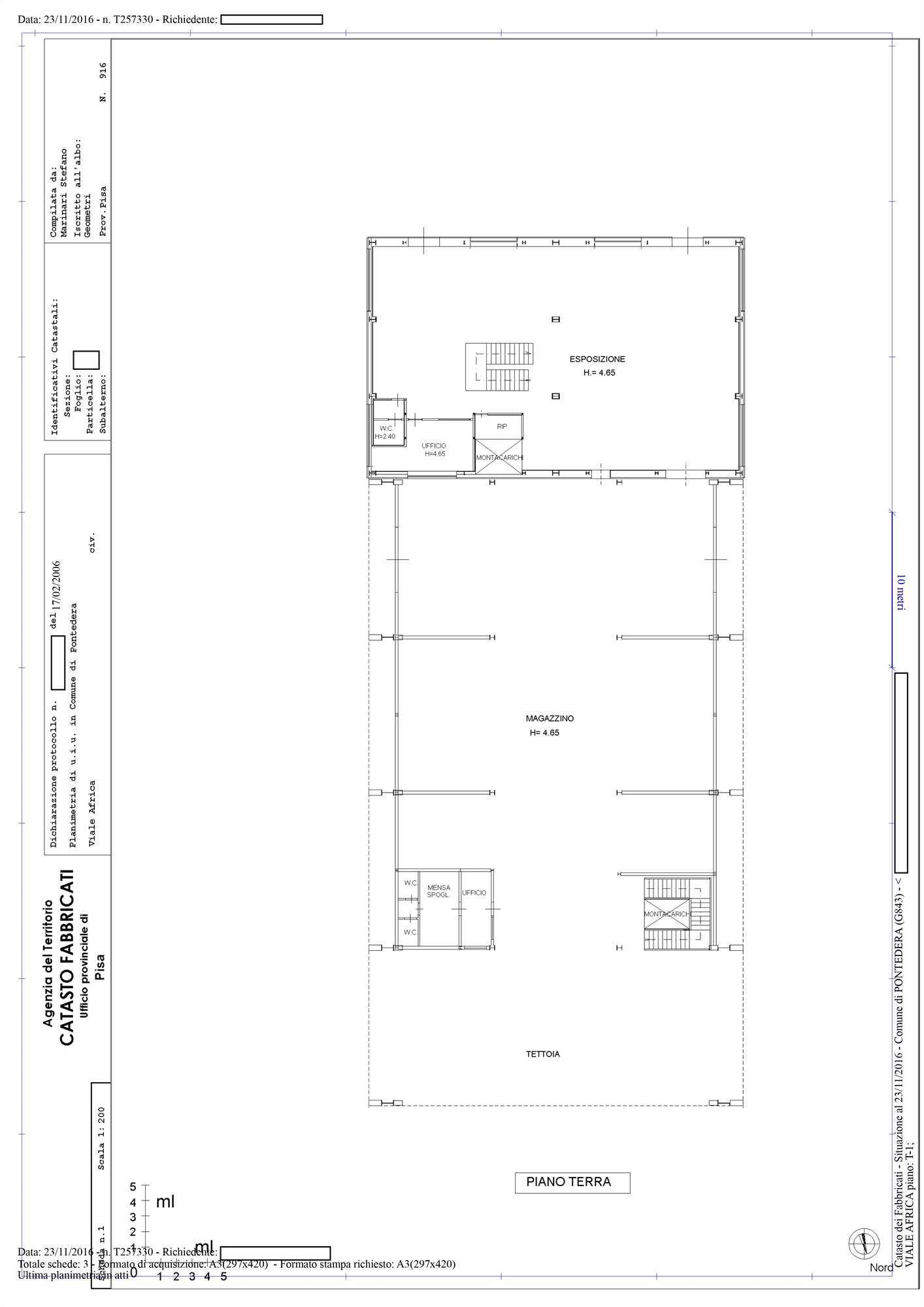
La proprietà è ubicata in una zona periferica del Comune di Pontedera (PI), in ViaAfrica, contraddistinta da insediamenti industriali, artigianali e commerciali all’ingrosso e depositi nella quale trovano o possono trovare ubicazione, attività di costruzione e trasformazione, ma anche commerciali, direzionali, turistico-ricettive e logistiche. Il contesto di riferimento è caratterizzato da un tessuto urbano a prevalente destinazione d'uso artigianale e commerciale. L'accessibilità alla zona è buona (l'uscita della superstrada FI-PI-LI è posto a circa 2 km di distanza - la zona è ben servita dalle principali infrastrutture viarie locali quali strade provinciali). La zona è discretamente servita da mezzi di trasporto pubblico ( la stazione dei treni è a 2 Km). Nella zona non si segnala la presenza di elementi rilevanti e/o di iniziative in via di sviluppo. Nelle immediate vicinanze della si segnala la presenza di un centro commerciale e dell'abitato di Pontedera denso di attività commerciali e servizi. La proprietà consta di un'unità immobiliare a destinazione d'uso commerciale edificata negli anni 2000. La proprietà è sviluppata su due piani (il piano terreno è destinato a esposizione , stoccaggio, così come il piano primo. All'unità commerciale si accede direttamente da Via Africa, sono presenti due cancelli di ingresso sulla recinzione. L'immobile è circondato su 4 lati da ampio piazzale con zona di movimentazione e stoccaggio nel retro. Le principali caratteristiche costruttive sono: struttura portante in metallo , tamponamenti pannelli prefabbricati, solai in c.a. e metallo, partizioni interne in blocchi di cls e cartongesso, pavimentazione in gres porcellanato e battuto di cemento, serramenti in alluminio e vetrocamera. I principali impianti presenti sono: elettrico, riscaldamento autonomo, impianto idrosanitario, split esterni per il condizionamento estivo, impianto antincendio. Lo stato manutentivo è da ritenersi buono.
Caratteristiche principali
Codice:
KFP003
Città:
Pontedera
Categoria:
Capannone
Locali:
25
Mq:
4751
Anno:
2000
Classe energetica:
G
Stato Immobile:
Da Ristrutturare
Grado:
Medio
Posizione:
Periferia
Panorama:
Vista Aperta
Lati Liberi:
4
Riscaldamento:
Autonomo
Tipo Riscaldam.:
Pompa di Calore
Tipo Impianto:
Aria
Fonte Energetica:
Elettrico
Acqua Calda:
Caldaia
Raffrescamento:
Split
Infissi:
Alluminio Doppio Vetro
Serramenti:
Da Sostituire
Pavimento:
Gres Porcellanato
Destinazione:
Commerciale
Accesso Disabili:
Nessuna Barriera
Accesso interno disabili:
Parziale
Accessori
Aria Condizionata
Cancello Elettrico
Doppi Vetri
Ingresso Indipendente
Distanze
Mezzi di trasporto
Aeroporto25 km
Porto36 km
Stazione dei treni2 km
Cookie preference